Op bedrijventerrein ‘De Kooi’ in Hoogerheide bieden wij u dit representatieve bedrijfsobject aan, bestaande uit een ruime bedrijfsloods van circa 180 m² in combinatie met een praktische kantoorruimte van circa 73 m². Dankzij de strategische ligging is de locatie uitstekend bereikbaar en voorzien van voldoende parkeergelegenheid op eigen terrein en in de nabije omgeving.
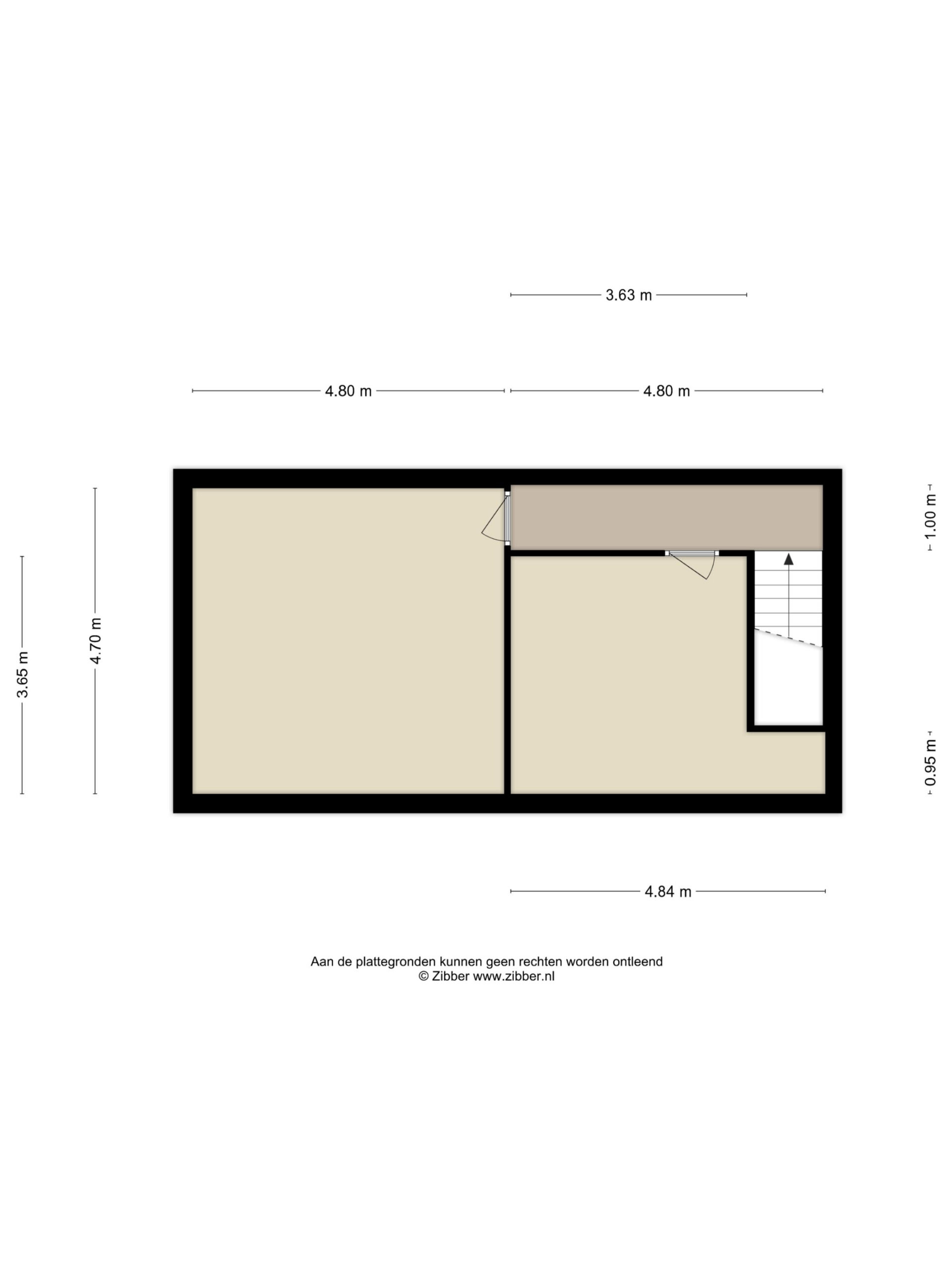
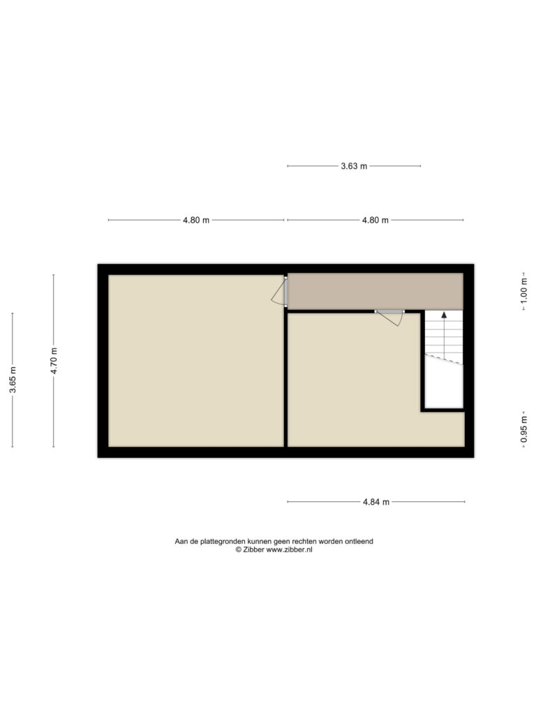
De bedrijfsloods heeft een vrije hoogte van circa 6,5 meter en is daarmee ideaal voor opslag, productie of werkplaatsactiviteiten. Toegang verloopt eenvoudig via de overheaddeur (ca. 3 meter hoog), waardoor voertuigen en goederen moeiteloos naar binnen kunnen. De loods is verder uitgerust met meerdere krachtstroomaansluitingen, een functionele heater, verlichting en diverse elektrapunten. Het kantoor is verdeeld over drie afzonderlijke ruimtes met een efficiënte indeling. Bij binnenkomst via de aparte toegangsdeur bereikt u direct de begane grond, waar zich het eerste kantoor bevindt, evenals een betegeld toilet, een pantry met close-in boiler en de meterkast (7 groepen, 2 krachtgroepen). Via de vaste trap bereikt u de eerste verdieping met de overige nette kantoor- of vergaderruimtes, afgewerkt met systeemplafond en stoffering.
Dit object combineert een praktische bedrijfsloods met comfortabele kantoorruimtes en vormt daarmee een aantrekkelijke keuze voor uiteenlopende bedrijfsactiviteiten.
KOOPPRIJS:
€ 279.000 k.k.
AANVAARDING:
Aanvaarding in overleg.
LOCATIE:
Dit bedrijfsobject is gelegen op bedrijventerrein ‘De Kooi’ in Hoogerheide, op slechts enkele minuten afstand van de snelweg. Daarnaast is er ruime parkeergelegenheid beschikbaar op eigen terrein en in de directe omgeving.
PARKEREN:
Vrij parkeren op eigen terrein.
VOORZIENINGEN LOODS:
- 180 m2 vloeroppervlakte
- 5 krachtstroompunten, 2 krachtgroepen
- Overheaddeur (3 meter hoog)
- Heater aanwezig
- Verlichting aanwezig
- Diverse elektrapunten
VOORZIENINGEN KANTOOR:
- 73 m2 vloeroppervlakte
- Pantry met close-in boiler
- Betegeld toilet
- Elektrische verwarmingen
- Verlichting aanwezig
- Diverse elektrapunten
- Aparte toegangsdeur
BESTEMMINGSPLAN:
Aanduiding 'bedrijf tot en met categorie 3.2': bedrijven voor zover deze voorkomen in categorie 1 tot en met 3.2 van de Staat van Bedrijfsactiviteiten 'bedrijventerrein'.
BEZICHTIGING:
Wilt u een bezichtiging inplannen? Bel naar 0164-261585 of stuur een email naar info@hopmansmakelaardij.nl.


























